
Использование продукта: Продукт предназначен для газлифтной добычи нефти.
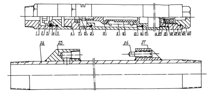
Структура: Как показано на рисунке, газлифтное устройство состоит из двух основных частей: одна часть — это часть газлифтного клапана (элементы 1-23), а другая — это неподвижная часть рабочего цилиндра (элементы 24-27)
Принцип работы
Высоконапорный газ поступает в газлифтный клапан из кольцевого пространства НКТ и обсадной колонны через боковое отверстие нижнего корпуса клапана, деталь 6. Когда давление газа больше требуемого давления азотного газа, действующего на его эффективную площадь внутри сильфона, головка клапана 8 опускается; Газ выталкивает однопоточный клапан 2 из внутренних отверстий деталей 4 и 6 и поступает в НКТ через боковое отверстие на укороченном патрубке НКТ 24. После того, как газ высокого давления поступает в НКТ, он может поднимать жидкость из земли по мере необходимости, достигая цели газлифтной добычи нефти. Газлифтный клапан устанавливается снаружи колонны НКТ. Когда рабочие параметры газлифтного клапана необходимо отрегулировать, НКТ необходимо вытащить.
Технические параметры:
Рабочее давление | Газлифтный клапан OD | Соединительная резьба для укороченного соединения НКТ |
25MPa | 25mm | 2-7/8TBG |
ADD:Комната 616, Fortune Plaza, Yungang Road, Авиационная экономическая зона
PHONE:+86 156 1779 7655
TEL:+86 371 85304855